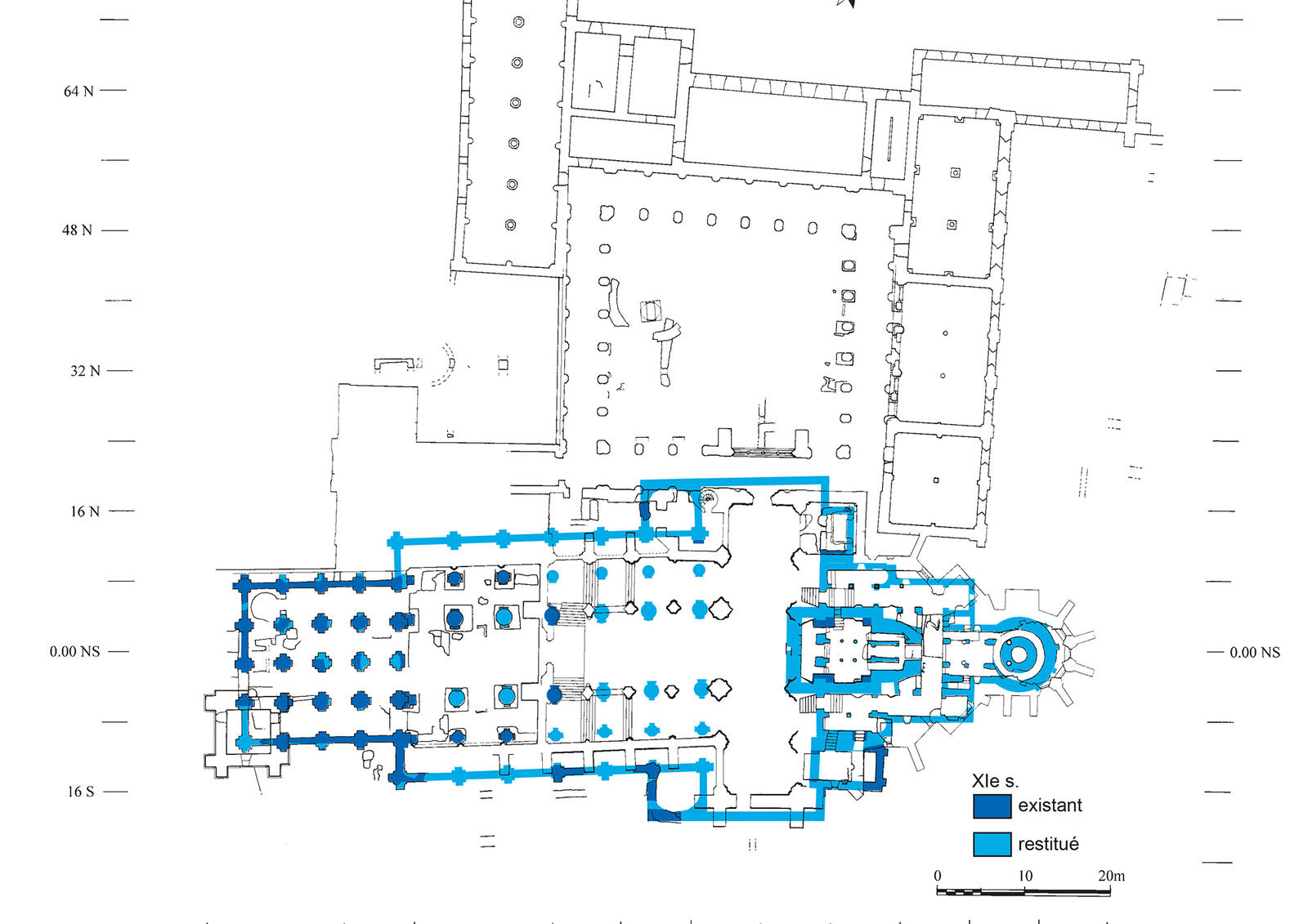
Abbaye, plan archéologique et restitution au XIe siècle

Abbaye Saint-Germain, plan archéologique et restitution au XIe siècle
12604

Les transformations du XIe siècle débutent dans l'avant-nef qui n'est d'ailleurs presque plus modifiée depuis cette période. Cette nouvelle étape de construction est marquée par un élargissement de l'abbatiale en particulier au niveau de la nef et du transept.

© Centre d'études médiévales, Auxerre

© Centre d'études médiévales, Auxerre

Explorer le site : L'abbaye Saint-Germain d'Auxerre